Thiết kế văn phòng Short Sentence, China
Short Sentence Office / Woodo Studio
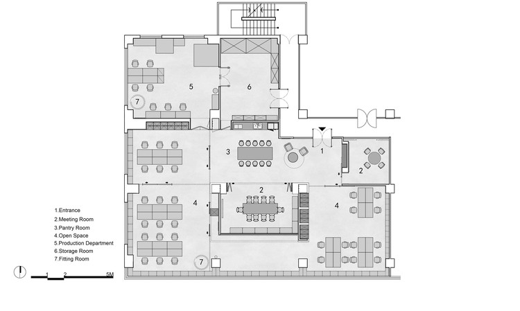
Một văn phòng đại diện của thương hiệu thiết kế trang phục nữ. Với ý tưởng thiết kế văn phòng được bao xung quanh bởi các khu vườn. Với mục tiêu duy trì thiết kế hài hòa giữa không gian bên trong và bên ngoài văn phòng. Sử dụng các đồ nội thất có vật liệu gần gữi với thiên nhiên, có nhiều công năng khéo léo tạo cảm giác mỹ quan. Sử dụng chủ đạo màu be, màu gỗ và màu xám làm chủ đạo, Các tông màu và vật liệu nhẹ nhàng được lựa chọn để nâng cao tính hiện thực và thoải mái. Vật liệu ván ép bạch dương tự nhiên thô ráp và hoàn hảo mang đến cho văn phòng cảm giác thân thuộc, nguyên sơ và bình dị. Cốt lõi của sự đơn giản hiện đại.
Cùng IFD group xem thêm các hình ảnh về thiết kế văn phòng tinh tế này nhé.
- Đơn vị thiết kế: Woodo Studio
- Năm hoàn thành: 2021
- Diện tích: 330 m²
- Quốc gia: Trung Quốc
NĂNG LỰC I.F.D GROUP
Thiết kế nội thất văn phòng và thi công luôn yêu cầu rất cao về sự tỉ mĩ, tinh tế nhằm tạo nên vẻ chỉn chu, sang trọng. Với I.F.D Group, chúng tôi luôn nỗ lực để có thể mang tới không gian văn phòng đẹp nhất, khoa học và phù hợp với văn hóa của các doanh nghiệp. Những công trình nổi bật của I.F.D Group bao gồm:
- Thiết kế nội thất văn phòng DHA
- Hệ thống văn phòng Việt Á Bank
- Hệ thống văn phòng PVCOMBANK
- Văn phòng TTC Land
- Văn phòng BIDV
-> Xem thêm các dự án tại đây
QUY TRÌNH TƯ VẤN THIẾT KẾ

1. GHI CHÉP
I.F.D GROUP sẽ trao đổi trực tiếp với chủ đầu tư để ghi nhận những thông tin cần thiết như: Đối tượng khách hàng, gu thẩm mỹ và những yêu cầu khác.

2. LÊN Ý TƯỞNG
I.F.D GROUP sẽ phát thảo các ý tưởng ban đầu dựa trên thông tin và yêu cầu của chủ đầu tư và đề xuất các phong cách thiết kế

3. THIẾT KẾ
I.F.D GROUP sẽ thiết kế các phối cảnh mặt trước, chi tiết, các góc nhìn trong thiết kế 3D để khách hàng đánh giá và điều chỉnh.

4. TỔNG HỢP
I.F.D GROUP tổng hợp toàn bộ thiết kế chi tiết với các phòng, mặt trước, trong và các góc nhìn 3D,… Nhà đầu tư sẽ kiểm tra và duyệt lại trước khi thi công

5. THI CÔNG
I.F.D GROUP tiến hành khảo sát thực địa, lên phương án và tiến hành thi công. Cuối cùng khách hàng kiểm tra và nghiệm thu công trình.
Các chủ đầu tư hiện đang cần tư vấn thực hiện các công trình có thể liên hệ với Chúng tôi theo thông tin:
CTY TNHH TƯ VẤN & ĐẦU TƯ I.F.D GROUP
- Địa chỉ: 36/74A Đường D2, Phường 25, Quận Bình Thạnh, TP Hồ Chí Minh, Việt Nam
- Hotline: 0931 785 586 – 0287 3046 768
- Email: dung@ifdvn.com – admin@ifdvn.com











