Thiết kế văn phòng DMIL Office Lounge
DMIL Office Lounge
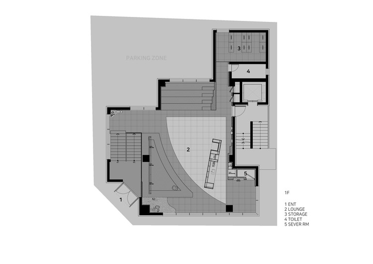
Văn phòng được thiết kế với khái niệm MÀU ĐEN PHẢI LÀ ĐEN MỚI. Nó bao gồm một không gian trung tính và mạnh mẽ, sử dụng màu ĐEN và XÁM. Không gian được phân chia theo chiều ngang được tạo ra để kết nối với nhau bằng vật liệu gọi là cầu thang. Cảm giác về hình dạng được tạo ra bởi cầu thang kết nối toàn bộ không gian theo chiều ngang và chiều dọc bằng cách kết nối từ sàn đến tường và tường này sang sàn khác.
Chủ tòa nhà là một công ty truyền thông mới sáng tạo, nó đã sử dụng các hình dạng hình học thay vì các hình dạng thẳng. Tầng 1 làm quán cà phê đơn giản và sảnh tiếp khách cho nhân viên, đồng thời có thể tổ chức họp toàn thể. Không gian ở tầng hầm đầu tiên bao gồm một studio và một không gian hội nghị mở, nơi những người tạo video như YouTuber và TikToker có thể tạo và chia sẻ video.
Cùng IFD group xem thêm các hình ảnh về thiết kế văn phòng tinh tế này nhé.
- Đơn vị thiết kế: Plainoddity
- Diện tích: 230 m²
- Năm hoàn thành: 2020
- Quốc gia: Hàn Quốc
NĂNG LỰC I.F.D GROUP
Thiết kế nội thất văn phòng và thi công luôn yêu cầu rất cao về sự tỉ mĩ, tinh tế nhằm tạo nên vẻ chỉn chu, sang trọng. Với I.F.D Group, chúng tôi luôn nỗ lực để có thể mang tới không gian văn phòng đẹp nhất, khoa học và phù hợp với văn hóa của các doanh nghiệp. Những công trình nổi bật của I.F.D Group bao gồm:
- Thiết kế nội thất văn phòng DHA
- Hệ thống văn phòng Việt Á Bank
- Hệ thống văn phòng PVCOMBANK
- Văn phòng TTC Land
- Văn phòng BIDV
-> Xem thêm các dự án tại đây
QUY TRÌNH TƯ VẤN THIẾT KẾ

1. GHI CHÉP
I.F.D GROUP sẽ trao đổi trực tiếp với chủ đầu tư để ghi nhận những thông tin cần thiết như: Đối tượng khách hàng, gu thẩm mỹ và những yêu cầu khác.

2. LÊN Ý TƯỞNG
I.F.D GROUP sẽ phát thảo các ý tưởng ban đầu dựa trên thông tin và yêu cầu của chủ đầu tư và đề xuất các phong cách thiết kế

3. THIẾT KẾ
I.F.D GROUP sẽ thiết kế các phối cảnh mặt trước, chi tiết, các góc nhìn trong thiết kế 3D để khách hàng đánh giá và điều chỉnh.

4. TỔNG HỢP
I.F.D GROUP tổng hợp toàn bộ thiết kế chi tiết với các phòng, mặt trước, trong và các góc nhìn 3D,… Nhà đầu tư sẽ kiểm tra và duyệt lại trước khi thi công

5. THI CÔNG
I.F.D GROUP tiến hành khảo sát thực địa, lên phương án và tiến hành thi công. Cuối cùng khách hàng kiểm tra và nghiệm thu công trình.
Các chủ đầu tư hiện đang cần tư vấn thực hiện các công trình có thể liên hệ với Chúng tôi theo thông tin:
CTY TNHH TƯ VẤN & ĐẦU TƯ I.F.D GROUP
- Địa chỉ: 36/74A Đường D2, Phường 25, Quận Bình Thạnh, TP Hồ Chí Minh, Việt Nam
- Hotline: 0931 785 586 – 0287 3046 768
- Email: dung@ifdvn.com – admin@ifdvn.com











