Thiết kế Quán cafe phê Ground – Czech
GROUNDS Coffee / KOGAA
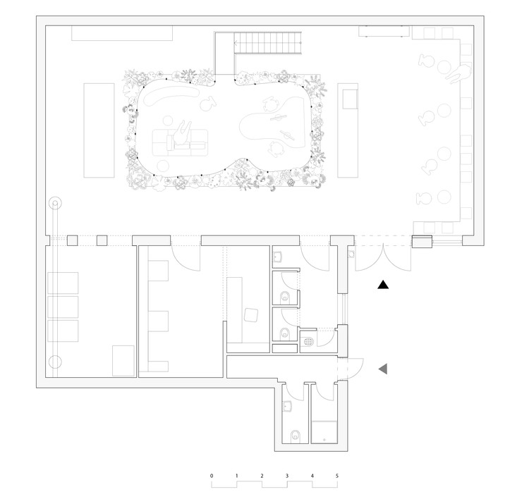
Ground là một coffee hub trong khu vực Karlíns đang phát triển của Praha. với diện dích 120m2, hoàn thành 2020. Quán cà phê gồm 2 gian chính, từ lối vào thực khách sẽ được thấy quy trình sản xuất cà phê sạch và đóng gói. Khi vào sâu hơn khách sẽ được thử những tách cà phê ngon và chiêm ngưỡng những máy pha cà phê. Với mục tiêu là mở rộng khái niệm sản xuất và quán bằng sự kết hợp chủ đầu tư muốn xây dựng nó như một phần của cộng đồng làm nền tảng đào tạo cho các nhân viên pha chế và các chuyên gia cà phê .
Đơn vi thực hiện: KOGAA
Diện tích: 120 m²
Năm hoàn thành: 2020
VÌ SAO I.F.D GROUP LÀ SỰ LỰA CHỌN HÀNG ĐẦU TRONG NGÀNH F&B VIỆT NAM
Với kinh nghiệm hơn 9 năm thiết kế nội thất nhà hàng và thực hiện hơn 350 dự án.
Thành lập từ năm 2011, I.F.D Group là một trong những đơn vị hàng đầu cung cấp dịch vụ thiết kế nội thất nhà hàng, quán cafe và thi công nội thất nhà hàng, quán cafe tốt nhất tại khu vực thành phố Hồ Chí Minh. I.F.D Group đã và đang là đối tác của các chuỗi nhà hàng lớn với quy mô toàn quốc như.
-> Xem thêm các dự án tại đây
QUY TRÌNH LÀM VIỆC TẠI I.F.D GRPOUP
QUY TRÌNH TƯ VẤN THIẾT KẾ

1. GHI CHÉP
I.F.D GROUP sẽ trao đổi trực tiếp với chủ đầu tư để ghi nhận những thông tin cần thiết như: Đối tượng khách hàng, gu thẩm mỹ và những yêu cầu khác.

2. LÊN Ý TƯỞNG
I.F.D GROUP sẽ phát thảo các ý tưởng ban đầu dựa trên thông tin và yêu cầu của chủ đầu tư và đề xuất các phong cách thiết kế

3. THIẾT KẾ
I.F.D GROUP sẽ thiết kế các phối cảnh mặt trước, chi tiết, các góc nhìn trong thiết kế 3D để khách hàng đánh giá và điều chỉnh.

4. TỔNG HỢP
I.F.D GROUP tổng hợp toàn bộ thiết kế chi tiết với các phòng, mặt trước, trong và các góc nhìn 3D,… Nhà đầu tư sẽ kiểm tra và duyệt lại trước khi thi công

5. THI CÔNG
I.F.D GROUP tiến hành khảo sát thực địa, lên phương án và tiến hành thi công. Cuối cùng khách hàng kiểm tra và nghiệm thu công trình.
Các chủ đầu tư hiện đang cần tư vấn thực hiện các công trình có thể liên hệ với Chúng tôi theo thông tin:
CTY TNHH TƯ VẤN & ĐẦU TƯ I.F.D GROUP
- Địa chỉ: 36/74A Đường D2, Phường 25, Quận Bình Thạnh, TP Hồ Chí Minh, Việt Nam
- Hotline: 0931 785 586 – 0287 3046 768
- Email: dung@ifdvn.com – admin@ifdvn.com











