Thiết kế nội thất CREAMCHIC Coffee Shop
CREAMCHIC / LABOTORY
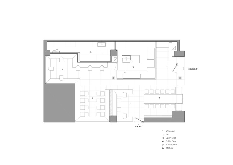
Sử dụng tông màu trắng xám, tạo nên vẻ sáng sủa, và sáng trọng tổng thể cấu trúc. Những nội thất bàn và ghế cũng được sử dụng lối tối giản mang lại sự giản dị nhưng ko thiếu tính hiện đại. Cửa hàng coffee đã được thể hiện sự tương phản của vật liệu mà tên thương hiệu CreamChic để nổi bật cảm giác nhận thức không gian theo ba chiều.
Đơn vi thực hiện: LABOTORY
Diện tích: 107 m²
Năm hoàn thành: 2021
VÌ SAO I.F.D GROUP LÀ SỰ LỰA CHỌN HÀNG ĐẦU TRONG NGÀNH F&B VIỆT NAM
Với kinh nghiệm hơn 9 năm thiết kế nội thất nhà hàng và thực hiện hơn 350 dự án.
Thành lập từ năm 2011, I.F.D Group là một trong những đơn vị hàng đầu cung cấp dịch vụ thiết kế nội thất nhà hàng, quán cafe và thi công nội thất nhà hàng, quán cafe tốt nhất tại khu vực thành phố Hồ Chí Minh. I.F.D Group đã và đang là đối tác của các chuỗi nhà hàng lớn với quy mô toàn quốc như.
-> Xem thêm các dự án tại đây
QUY TRÌNH LÀM VIỆC TẠI I.F.D GRPOUP
QUY TRÌNH TƯ VẤN THIẾT KẾ

1. GHI CHÉP
I.F.D GROUP sẽ trao đổi trực tiếp với chủ đầu tư để ghi nhận những thông tin cần thiết như: Đối tượng khách hàng, gu thẩm mỹ và những yêu cầu khác.

2. LÊN Ý TƯỞNG
I.F.D GROUP sẽ phát thảo các ý tưởng ban đầu dựa trên thông tin và yêu cầu của chủ đầu tư và đề xuất các phong cách thiết kế

3. THIẾT KẾ
I.F.D GROUP sẽ thiết kế các phối cảnh mặt trước, chi tiết, các góc nhìn trong thiết kế 3D để khách hàng đánh giá và điều chỉnh.

4. TỔNG HỢP
I.F.D GROUP tổng hợp toàn bộ thiết kế chi tiết với các phòng, mặt trước, trong và các góc nhìn 3D,… Nhà đầu tư sẽ kiểm tra và duyệt lại trước khi thi công

5. THI CÔNG
I.F.D GROUP tiến hành khảo sát thực địa, lên phương án và tiến hành thi công. Cuối cùng khách hàng kiểm tra và nghiệm thu công trình.
Các chủ đầu tư hiện đang cần tư vấn thực hiện các công trình có thể liên hệ với Chúng tôi theo thông tin:
CTY TNHH TƯ VẤN & ĐẦU TƯ I.F.D GROUP
- Địa chỉ: 36/74A Đường D2, Phường 25, Quận Bình Thạnh, TP Hồ Chí Minh, Việt Nam
- Hotline: 0931 785 586 – 0287 3046 768
- Email: dung@ifdvn.com – admin@ifdvn.com











